Treskerby, Redruth
2 bedroom barn, detached bungalow, plot - 0.36 acres- 2
bedrooms - 1
bathrooms - 1
receptions
Features
- Single storey barn with planning
- Grounds over 1/3 in
-
Book Viewing
Book Viewing
Please complete the form below and a member of staff will be in touch shortly.
- Brochure
Property Summary
- Ref: LAT221604
- Type: Barn, Detached Bungalow, Plot
- Availability: Sale Agreed
- Bedrooms: 2
- Bathrooms: 1
- Reception Rooms: 1
- Outside Space: Garden
- Tenure: Freehold
- Acreage: 0.36 acres
Full Details
The Property
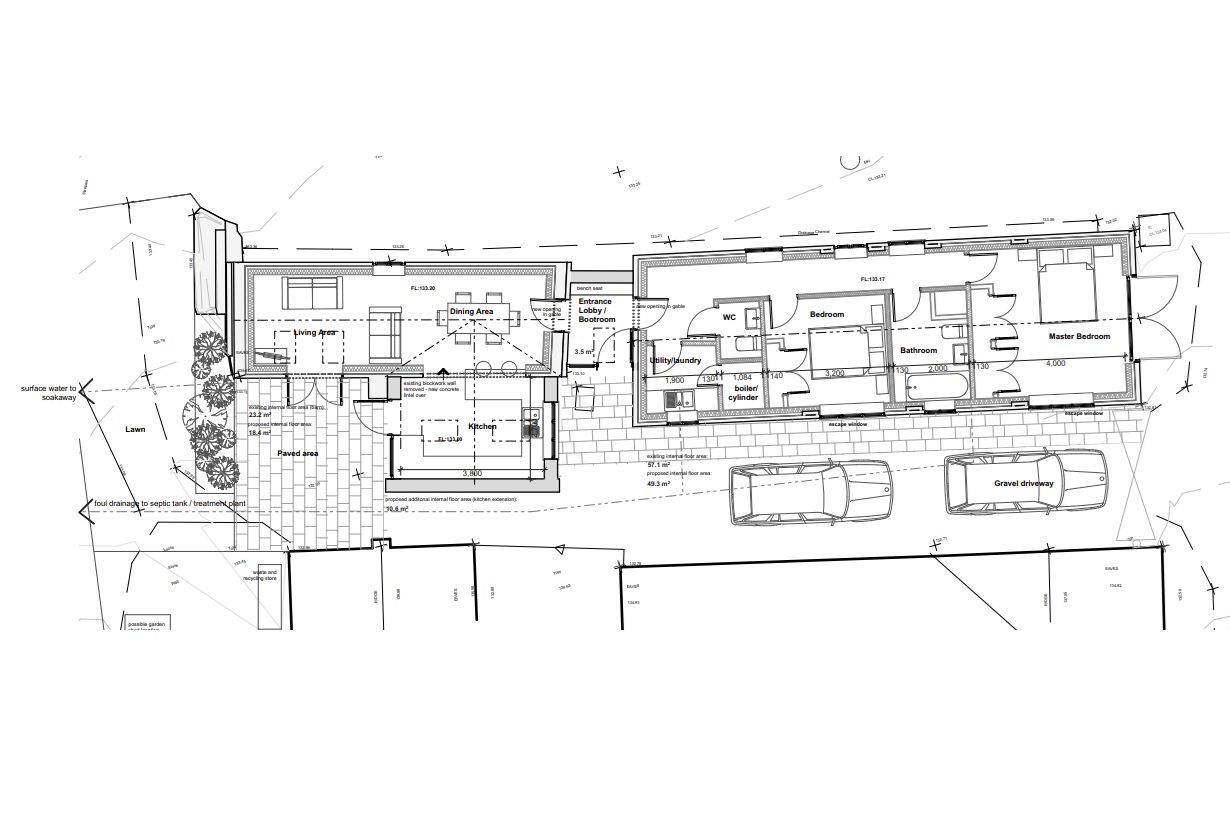
The site comprises two single storey redundant barns together with grounds extending to 0.36 acres or thereabouts. The barns have the benefit of planning permission (PA22/01327) for conversion into a single storey residential dwelling and the planning is considered extant as we understand a materialistic start has been confirmed.
The proposed accommodation will comprise an open plan, L-shaped living/kitchen/dining area with lobby, two double bedrooms, bathroom, w.c. and a utility room. There will be parking space for two vehicles in tandem alongside the property and there is land at the rear, ideal for landscaping into formal gardens (subject to change of use).
Property Information
Services
None connected, though it is understood that mains water is available in the roadway nearby and that the vendors will allow shared use of a new septic tank within their retained land for the proposed dwelling (connection and maintenance contributions payable by the purchaser). Interested parties are advised to make their own enquiries to the relevant service providers.
Wayleaves, Easements & Rights of Way
The sale will be subject to and with the benefit of all wayleaves, easements and rights of way as may exist.
Particulars & Plan
Whilst every care is taken in the preparation of these particulars, their accuracy is not guaranteed and they do not constitute any part of an offer or contract. Any intending purchaser/s must satisfy themselves by inspection or otherwise as to the correctness of these particulars.
Location
The barns are located within a small nucleus of other character properties sitting towards the end of a single track lane on the outskirts of Treskerby, which whilst enjoying a rural ambience is actually very accessible being just half a mile from Scorrier and a mile from the A30. Scorrier offers a range of everyday amenities including a fuel station with convenience store, public house and bakery and just a short distance from the village is Cardrew Industrial Estate offering several conveniences. The market town of Redruth, which boasts an extensive range of facilities, also offers a mainline railway connection to London (Paddington).
Viewing & Directions
Viewers may visit the site for viewing purposes with sale particulars in hand, during daylight hours adhering to the Countryside Code. Please notify the agents Lodge & Thomas of your intended visit. Tel: 01872 272722 Email: property@lodgeandthomas.co.uk
Directions
From Scorrier take the turning immediately opposite the bakery and fuel station signposted Treskerby and follow this road for approximately a quarter of a mile before turning sharply left into a no through road. Follow this road for a short distance before turning right and the barns can be found on the right hand side after approximately 250m, identified by a Lodge & Thomas for sale board.
what3words///trial.statement.comfort
Map View
what3words Locations
trial.statement.comfort
















