Near Porth, Newquay
1 bedroom semi-detached houseFeatures
- One bedroom semi-detached house with sea views
- Built in 2005/2006
- uPVC double glazing and gas central heating
- Small enclosed garden
- Off-road parking for one car
Property Summary
Full Details
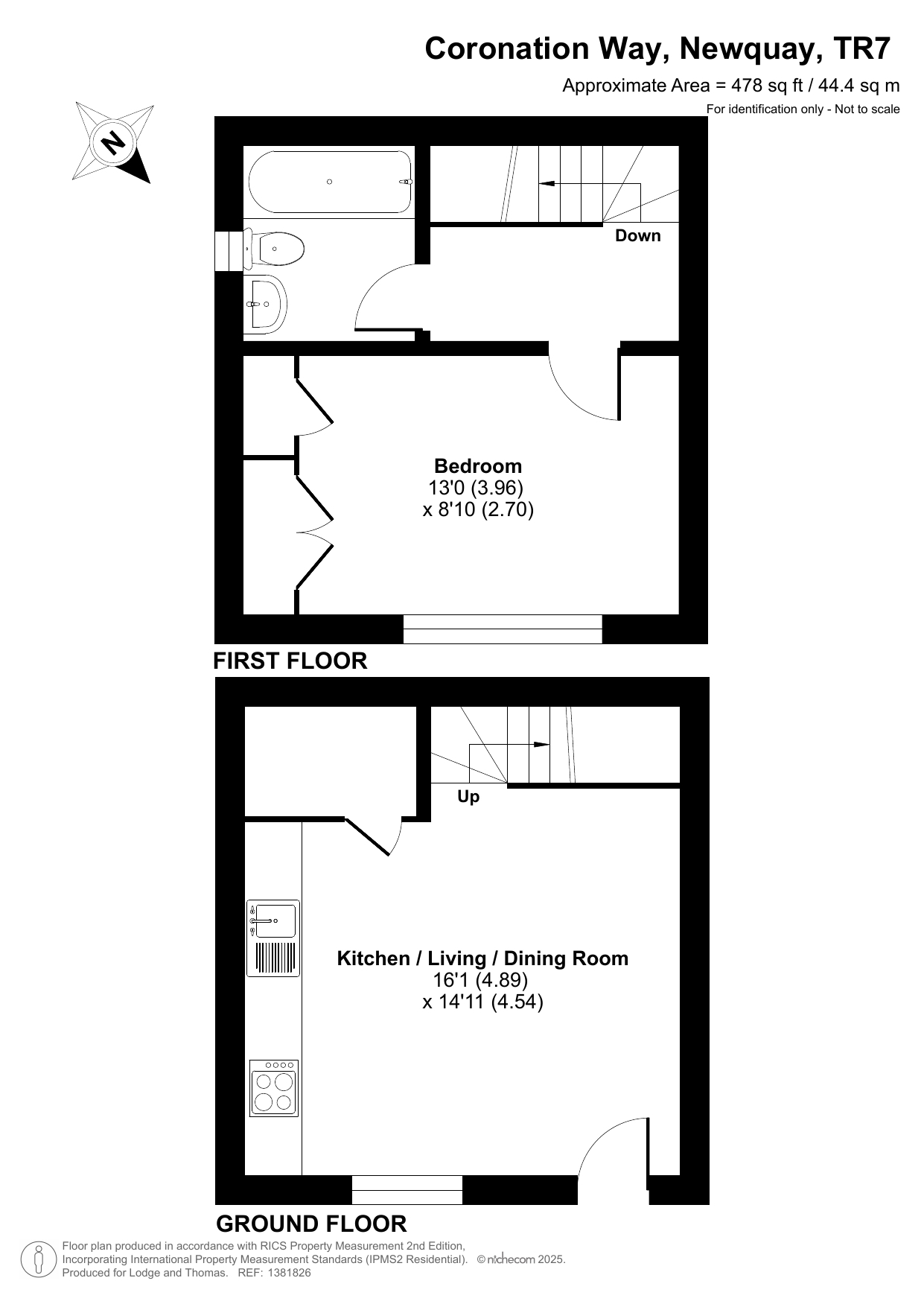
The Property
Built in 2005/2006, this compact one bedroom house has the benefit and convenience of both uPVC double glazing and gas central heating.
The accommodation comprises at ground floor: An open plan living room and kitchen; utility room and at first floor: A bathroom with wc and a generous double bedroom that enjoys a wide open aspect over Newquay Bay toward the Headland.
Outside, to the front of the terrace, is an allocated single parking space, and just outside the entrance door, at the rear of the terrace, is a small enclosed level garden,
The property is now ready for re-fitting of the kitchen and bathroom, allowing a new owner to personalise and improve their home.
Property Information
EPC D Council Tax Band A
Services: Mains electricity, gas, water and drainage. None of these services have been tested and therefore no guarantees can be given. Interested parties are advised to make their own enquiries to the relevant service providers.
Wayleaves, Easements & Rights of Way: The sale will be subject to and with the benefit of all wayleaves, easements and rights of way as may exist.
Particulars & Plan: Whilst every care is taken in the preparation of these particulars, their accuracy is not guaranteed and they do not constitute any part of an offer or contract. Any intending purchaser/s must satisfy themselves by inspection or otherwise as to the correctness of these particulars.
Location
Coronation Way is an established residential neighbourhood, just above Porth which itself is a stunning family beach on the northern fringe of this iconic family holiday resort. Nearby there are amazing coastal walks over Porth Island and along the coast to Whipsiderry and further on, Watergate Bay. Close to hand on Hendra Road are a Co-op and Post Office, which between them will cater for most daily requirements, whilst within a 2 mile radius is a much wider range of shopping, recreational and health facilities. The location will appeal as a retirement home, first purchase or even as low maintenance bolthole.
Viewing & Directions
Strictly by appointment with the sole selling agent Lodge & Thomas. Tel: 01872 272722.
Email: property@lodgeandthomas.co.uk
Directions
Upon entering Newquay on the A3058, proceed over and across the roundabout at Nansledan onto Quintrell Road. Take the third turning on the right opposite the Post Office into Porth Bean Road and follow this road past St Columb Minor Academy and the lower entrance into Treviglas Community College. Take the next turning right into Coronation Way where the property will be found a short way along behind the terrace fronting the road.
what3words ///truth.clocking.artichoke


















