Sea Road, Carlyon Bay
land, plot - 0.37Features
- Frontline Building Plot
- Planning Permission for 5 Apartments
- Spectacular Sea Views
Property Summary
Full Details
The Land
A cleared site, ready for development to start immediately, occupying an unrivalled position along Sea Road with spectacular, unobstructed sea views over St Austell Bay encompassing Carlyon Bay Beach and Gribben Head. The plot has direct access to the South West Coast Path with both Carlyon Bay Beach and Charlestown Harbour being less than one mile’s walk in either direction.
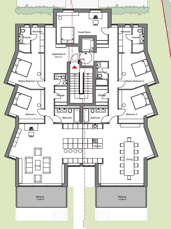
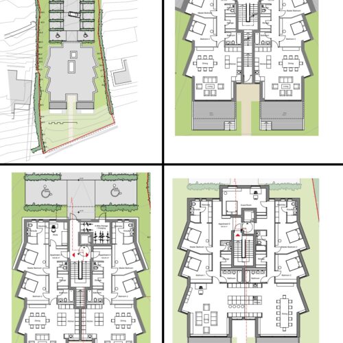
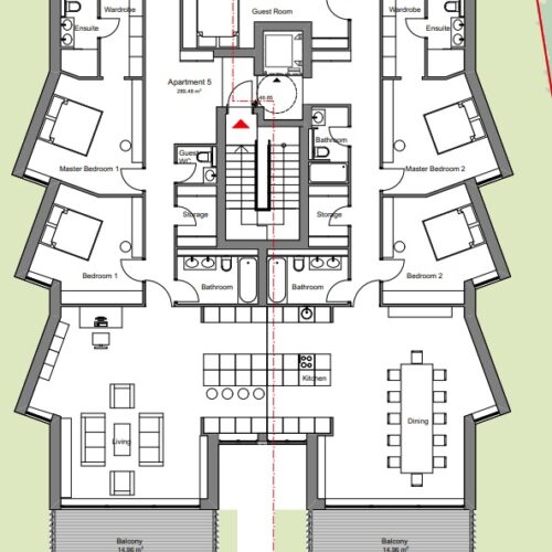
Planning permission (PA25/04501) was granted on 19th September 2025 for the erection of a building to comprise five apartments over three floors together with their associated parking spaces and gardens including communal grounds, balconies and terraces.
The proposed apartments will comprise two 2 bedroom apartments with terraces to the ground floor, a 2 and 3 bedroom apartment on the first floor with balconies and a large 5 bedroom penthouse occupying the top floor, again with a large balcony. Positive pre-application advice was sought in July 2023 (PA23/00668/PREAPP) for the reconfiguration of the top floor to comprise two 3 bedroom apartments, and so there is potential to create six apartments on the same footprint (subject to planning consent). Equally, whilst planning for apartments has been granted the site does also offer a potentially fantastic opportunity to create a superb, individual detached residence or perhaps even for two dwellings on the site (subject to planning consent).
The whole site extends to 0.37 acres or thereabouts and forms a rectangular plot of approximately 60m x 25m.
Property Information
Planning History
The demolition of the single dwelling and garage has taken place and is confirmed by a Certificate of Lawfulness (PA18/11665) dated 4th February 2019 to have commenced with the material operation of the demolition deemed to be lawful.
Services
Assumed none connected but assumed all mains services are available nearby. Interested parties are advised to make their own enquiries to the relevant service providers.
Wayleaves, Easements & Rights of Way
The sale will be subject to and with the benefit of all wayleaves, easements and rights of way as may exist.
CIL
This site will be subject to a Community Infrastructure Levy (CIL) payment, unless an exemption applies.
Particulars & Plan
Whilst every care is taken in the preparation of these particulars, their accuracy is not guaranteed and they do not constitute any part of an offer or contract. Any intending purchaser/s must satisfy themselves by inspection or otherwise as to the correctness of these particulars.
Location
Sea Road is the most exclusive address within Carlyon Bay and this site enjoys a frontline position with direct access on to the South West Coast Path and breathtaking, uninterrupted sea views. There are several beaches within walking distance and Carlyon Bay offers a range of local facilities including cafes/bars, restaurants as well as an 18 hole golf course and nearby Charlestown offers a primary school, a number of cafes and restaurants, as well as the famous Shipwreck Museum.
St Austell offers a much wider range of everyday amenities, including supermarkets and the main trainline to London (Paddington) and is home to the Eden Project.
Viewing & Directions
Strictly by appointment with Lodge & Thomas.
Tel: 01872 272722.
Email: property@lodgeandthomas.co.uk
Directions
Proceed along Sea Road with the sea on your right hand side and follow the road passing the Porth Avallen Hotel. The site will be found after a short distance on the right hand side identified by a Lodge & Thomas for sale board.
what3words ///sorters.retrain.strongman
Map View
what3words Locations
sorters.retrain.strongman




















