Redruth
officeFeatures
- Freehold Investment
- Approx. 195.7sqm
- Town Centre Location
Property Summary
Full Details
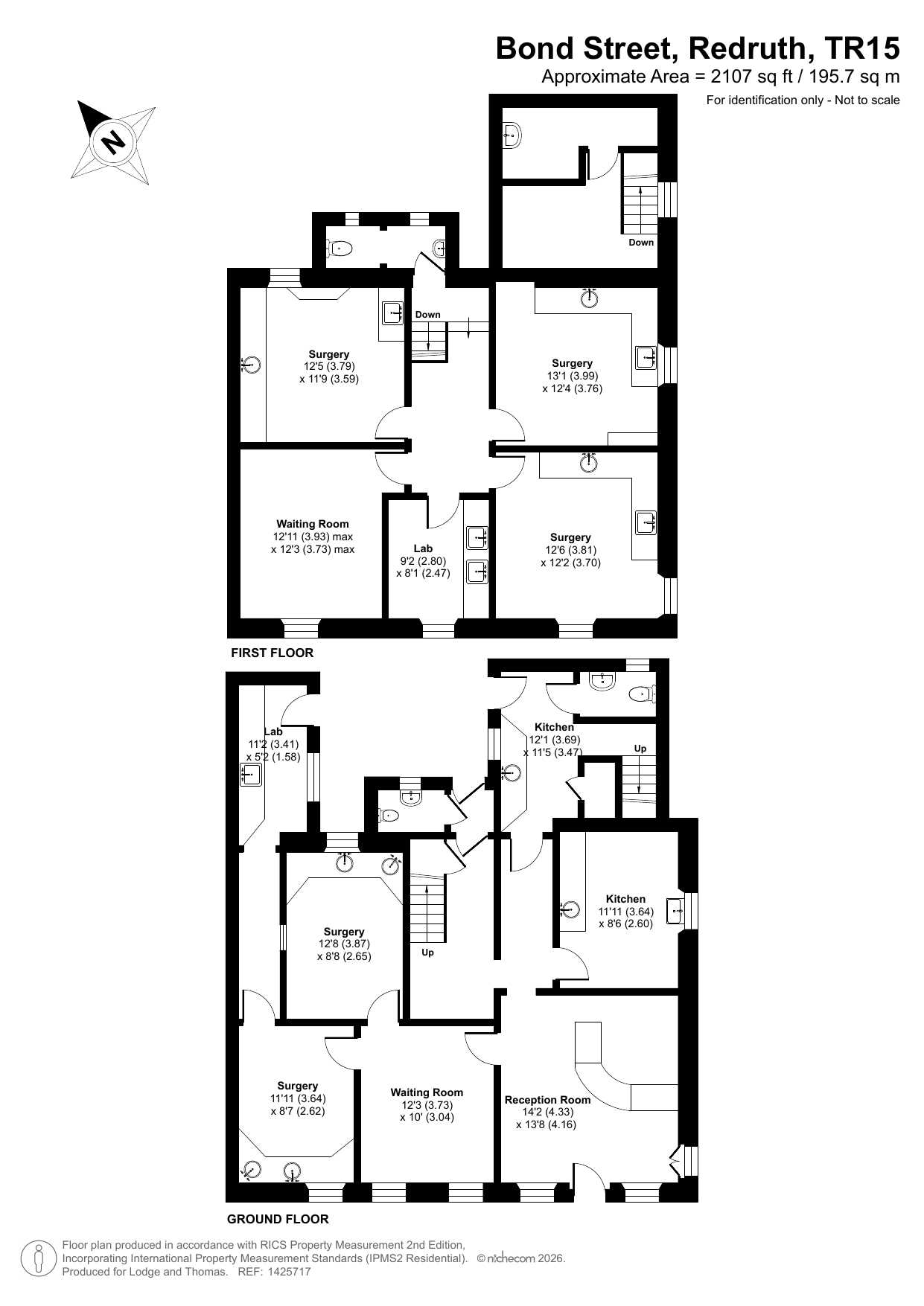
The Property
The principal elevation has frontage onto Bond Street and is currently occupied by a well-established Dental Practice. The property is mainly of traditional stone construction, with later concrete block-built extension to the rear. The building has a pitched roof, with composite slate covering on the principal section. To the rear extension is a flat roof with mineral felt covering. The property has some UPVC double glazed units and some timber framed single glazed units.
The property is arranged over 2 floors. The first floor to the rear extension is accessed via a separate staircase:
This is an end of terrace property, with the southern elevation and rear entrance leading to Church View road. The rear pedestrian gate leads to an enclosed courtyard.
Property Information
Terms
The property is available on a freehold basis subject to a Tenancy under the Landlord and Tenant Act 1954, which ends on 30th June 2030. The rent was reviewed in 2025 and details of the rental income are available on request.
Business Rates
From the Valuation Office Agency website (www.voa.gov.uk) we understand that the current Rateable Value is £16,250 for effective from April 2023. Local Council reference: 23285706012000.
EPC: E
Services
Mains electricity, water, gas and drainage are connected. None of these services have been tested and therefore no guarantees can be given.
VAT
All figures are quoted exclusive of VAT if applicable.
Wayleaves, Easements & Rights of Way
The sale will be subject to and with the benefit of all wayleaves, easements and rights of way as may exist.
Situation
The property is situated in the town centre of Redruth, which together with the conurbation and towns of Pool and Camborne has the largest population of Cornwall. Redruth lies approximately 10 miles from the city of Truro, being the principal retail and administrative area of the County. Redruth benefits from a main line railway service and good access onto the A30 highway.
Particulars & Plan
Whilst every care is taken in the preparation of these particulars, their accuracy is not guaranteed and they do not constitute any part of an offer or contract. Any intending purchaser/s must satisfy themselves by inspection or otherwise as to the correctness of these particulars.
Viewing
Strictly by appointment with the sole selling agent Lodge & Thomas
Tel: Edward Harris BSc (Hons) MRICS FAAV 07977662443 Email: edharris@lodgeandthomas.co.uk
Map View
what3words Locations
provoking.slippery.moods
























