High Lanes, Hayle
3 bedroom detached house, plotFeatures
- Detached Edwardian House
- 3 bedrooms
- Generous gardens
- Additional Plot with Planning Permission for 3 homes
Property Summary
Full Details
The Property
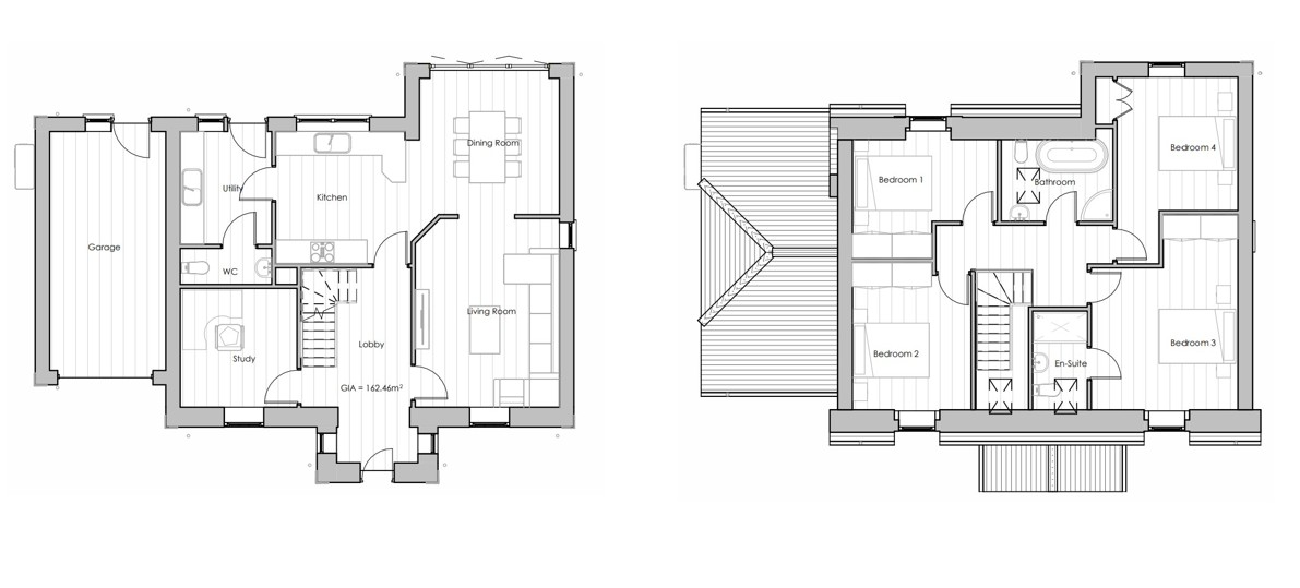
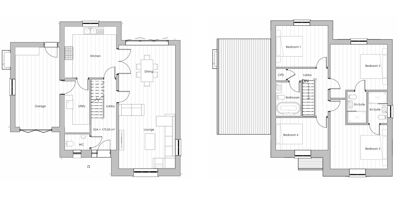
Built in 1908 and held within the same family for over forty years, this handsome detached three-bedroom Edwardian home sits on a generous 0.2-acre plot. Constructed in local stone and featuring attractive bay windows and high ceilings throughout, the property offers over 1,300sq ft of accommodation and presents an excellent opportunity to modernise and create a superb family home in a sought-after location. The entire house, including the front porch and conservatory, has recently been fitted with new double-glazed windows and exterior doors.
The ground floor comprises a welcoming entrance hallway, a well-proportioned kitchen and dining room, a bright sitting room, conservatory, and a useful utility room. Large windows and high ceilings provide excellent natural light and enhance the spacious feel of the rooms.
Upstairs, there are three bedrooms and a family bathroom fitted with an electric shower. Two of the bedrooms enjoy far-reaching views across to Carbis Bay, further enhancing the home’s appeal. A loft space offers additional potential, subject to the necessary permissions.
Outside, the property benefits from wraparound gardens, off-road parking, and a detached outbuilding comprising three stores, all with power connections. The front and rear gardens offer privacy and scope for landscaping or extension.
The Devlopment Plots
Situated behind 36 High Lanes, the land extends to approximately 0.77 acres and benefits from planning in principle (Ref: PA24/09673) for the construction of three detached dwellings, granted on 26th February 2025. The level site enjoys far-reaching views across the western valley and is bounded by a stone wall interwoven with mature growth, creating an established and attractive setting.
Property Information
EPC D Council Tax Band C
Services
Mains electricity, water, and gas. None of these services have been tested and therefore no guarantees can be given. Interested parties are advised to make their own enquiries to the relevant service providers.
Wayleaves, Easements & Rights of Way
The sale will be subject to and with the benefit of all wayleaves, easements and rights of way as may exist.
Particulars & Plan
Whilst every care is taken in the preparation of these particulars, their accuracy is not guaranteed and they do not constitute any part of an offer or contract. Any intending purchaser/s must satisfy themselves by inspection or otherwise as to the correctness of these particulars.
Location
36 High Lanes, Hayle, is in a well-connected area on the edge of the town. Hayle offers a range of local amenities including supermarkets, schools, healthcare facilities, and leisure options. The A30 provides easy access to nearby towns such as Penzance, St Ives, and Truro, while Hayle’s railway station offers direct links to the mainline network.
Viewing & Directions
Strictly by appointment with the sole selling agent Lodge & Thomas. Tel: 01872 272722
email: property@lodgeandthomas.co.uk
Directions
From the A30, head into Hayle. At Loggans Moor Roundabout, take the 4th exit onto Carwin Rise (B3301). At the next roundabout, take the 1st exit onto Guildford Road. After approximately 0.4 miles, turn right onto Viaduct Hill, then continue onto High Lanes. Proceed straight over the next roundabout; the property will be on the left.
what3words ///corded.usual.frail
Map View
what3words Locations
corded.usual.frail






















































