Cross Common, The Lizard, Helston
plotFeatures
- Building Plot
- Edge of The Lizard Village
Property Summary
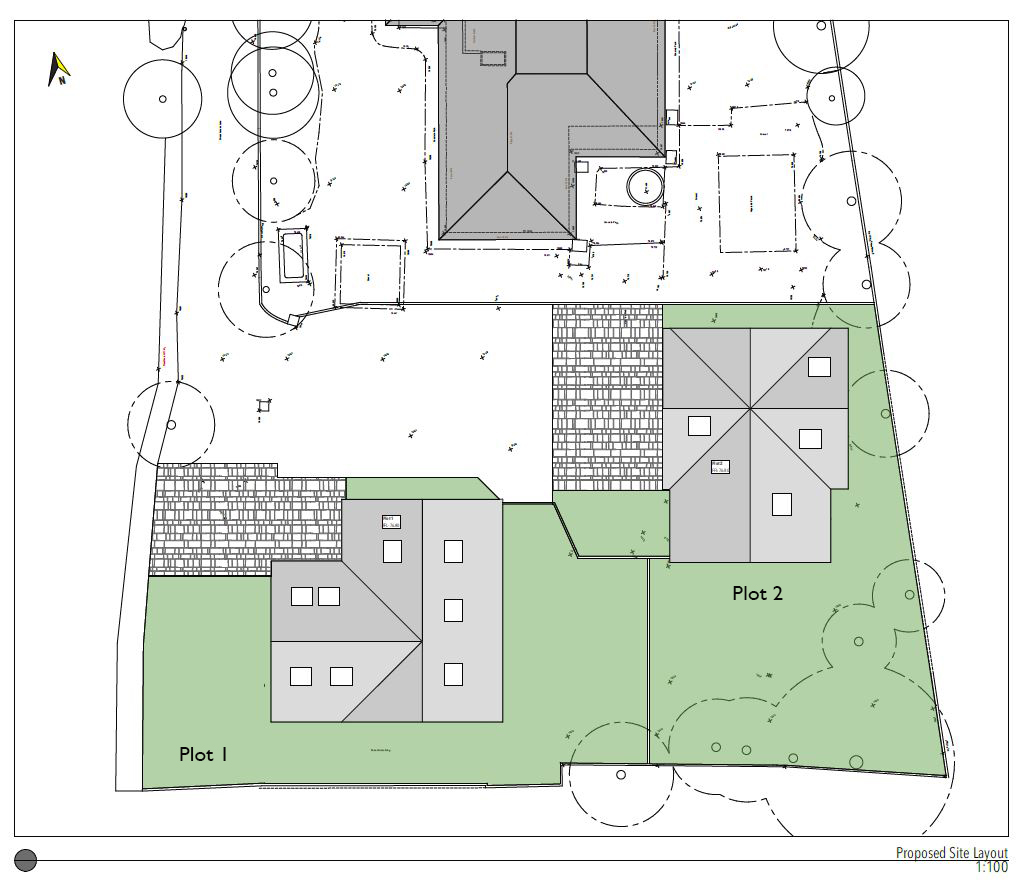
A development site on the edge of The Lizard village, with planning consent for the erection of two detached dwellings with garaging, parking and gardens.
Full Details
The Property
A level site on the north-eastern fringes of the village. Conditional planning consent granted on the 24/04/2024 (Planning Reference No. PA23/10217) for the erection of two detached dwellings, to be accessed off a short access way. Within the grounds lies a timber summerhouse.
The proposed accommodation comprises:
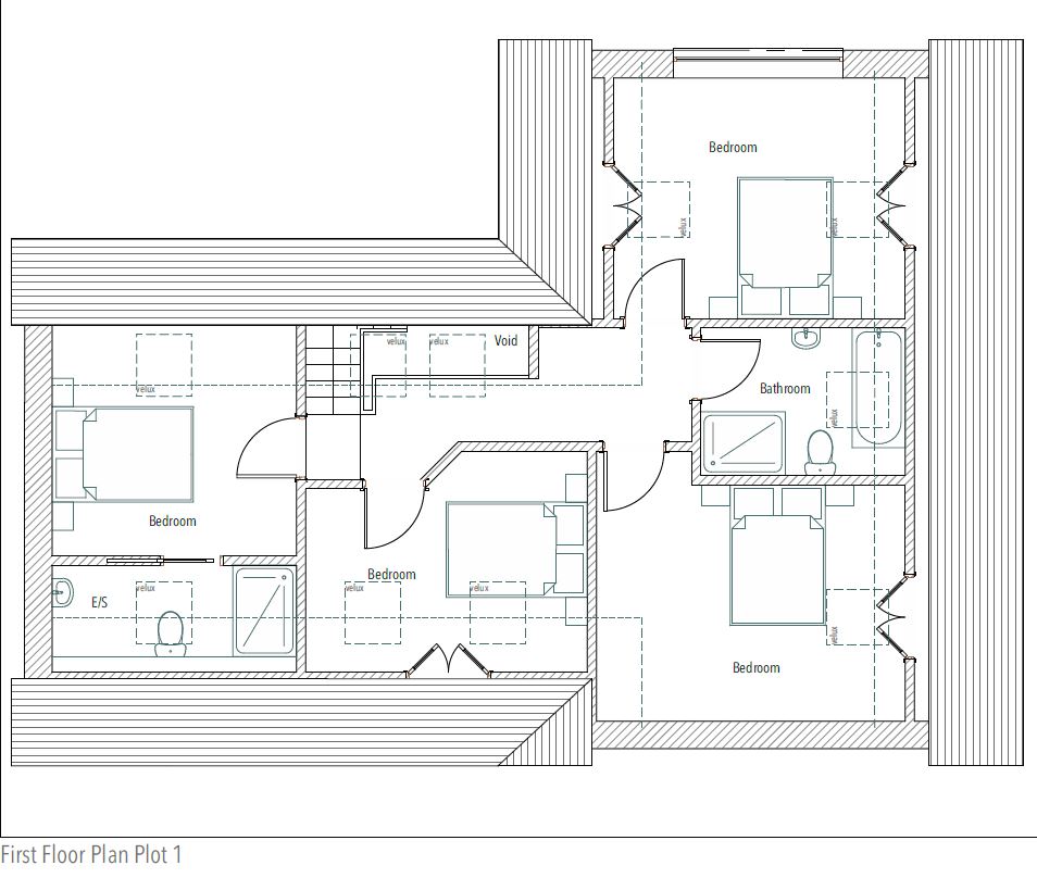
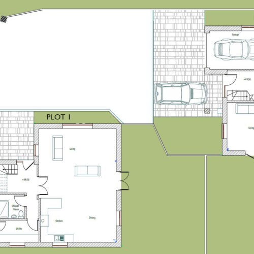
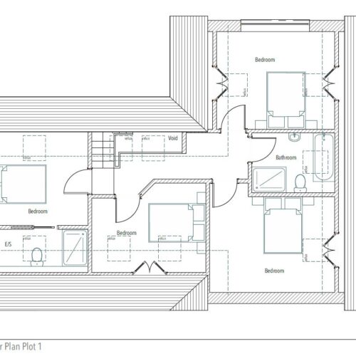
Plot 1 - Ground floor: entrance hall, open plan kitchen/living/diner, shower room, utility, integral garage. First floor: master bedroom en-suite, three further double bedrooms, bathroom.
Plot 2 – Ground floor: entrance hall, open plan kitchen/living/diner, bathroom, garage, utility. First floor: three double bedrooms, shower room.
Full planning details are available from Cornwall Council planning portals, or the auctioneers.
Property Information
Community Infrastructure Levy (CIL)
The development is subject to a CIL charge unless exemption applies.
Proposed Services
Mains water, mains drainage, mains electricity. Interested parties are advised to make their own enquiries of the appropriate statutory undertakers: National Grid: 0800 096 3080; South West Water: 0800 169 1144; Wales and West Utilities: 0800 912 2999
Wayleaves, Easements & Rights of Way
The sale will be subject to and with the benefit of all wayleaves, easements and rights of way as may exist.
Particulars & Plan
Whilst every care is taken in the preparation of these particulars, their accuracy is not guaranteed, and they do not constitute any part of an offer or contract. Any intending purchaser/s must satisfy themselves by inspection or otherwise as to the correctness of these particulars.
Location
The Lizard Village is mainland Britain’s most southerly point and offers a truly spectacular coastline, the area being designated as an Area of Outstanding Natural Beauty. The village provides a range of amenities including Post Office, village store and a number of public houses and restaurants and a primary school. The nearest secondary school is at Mullion, which is approximately 4 miles distant.
Viewing & Directions
Strictly by appointment. Tel: 01872 272722 Email: property@lodgeandthomas.co.uk
Directions
On entering The Lizard Village bear left signposted Church Cove and follow this lane without deviation for approximately ¼ of a mile and the plot will be found on your right-hand side as marked by the Lodge & Thomas for sale board.
what3words///squeaking.gems.slings
General Conditions of Sale
Our online Auction partners are Bamboo Auctions – www.bambooauctions.com
SPECIAL CONDITION OF SALE The buyer should refer to the special conditions within the auction pack.
The buyer shall contribute, on completion, £950.00 towards the cost of the searched and the preparation for the auction undertaken by the Seller.
METHOD OF SALE The property will be offered for sale by Online Traditional Auction. The Vendor reserves the right to withdraw or alter the property prior to the auction end date. The bidding page will be found on the Lodge & Thomas website under ‘Sales’ – ‘Online Property Auctions’.
AUCTION LEGAL PACK AND SPECIAL CONDITIONS OF SALE This will be available to download from our auction partners’ website free of charge to those who have registered. It is the Purchaser’s responsibility to make all necessary enquiries prior to the auction and we strongly recommend purchasers instruct a solicitor to assist. It will be the purchasers’ responsibility to reimburse the vendors costs for the provision of the Legal Pack on sale.
COMPLETION DATE Normally up to 28 days or sooner following exchange of contracts.
BUYER’S AND ADMINISTRATIVE FEES The successful Purchaser will be required to pay £5,000 at the end of the auction. From this, a Buyer’s fee of £3,600 inclusive of VAT is retained by Lodge & Thomas/Bamboo Auctions as a contribution toward the online platform costs, and £1,400 forms part of the 10% contract deposit. The purchaser will be required to pay the balance of the 10% contract deposit monies within 24 hours of the auction via their solicitor to the Vendors solicitor.
DEFINITION OF AUCTION GUIDE AND RESERVE PRICE Guide price(s) is an indication of the Seller’s expectations. Reserve price(s) is a figure below which the auctioneer cannot sell the lot at auction. We expect the reserve will be set within the guide range. Guide prices and Reserve prices may change at any time prior to the auction.
ANTI-MONEY LAUNDERING ACT 2007 Under current Money Laundering Regulations 2007 it is a legal requirement for Estate Agents and Solicitors to perform due diligence checks to any person that intends to bid at auction. There will be a requirement for all bidders to register via the online sale site and complete the ID checks. There is no charge for registration.
Vendors Solicitors: Nalders Solicitors, North Wing, Bickland House, Bickland Water Road, Falmouth. TR11 4SB
FAO: Mark Buswell. Tel: 01326 313441. Email: jmb@nalders.co.uk
Map View
what3words Locations
squeaking.gems.slings




















