Brill, Constantine, Falmouth
2 bedroom barn conversion, smallholding - 2.63 acres- 2
bedrooms - 1
bathrooms - 1
receptions
Features
- Modern build in the style of a barn conversion
- Two double bedrooms
- Private setting
- 2.63 acres
- Far-reaching views
- Stables and tack/feed room
-
Book Viewing
Book Viewing
Please complete the form below and a member of staff will be in touch shortly.
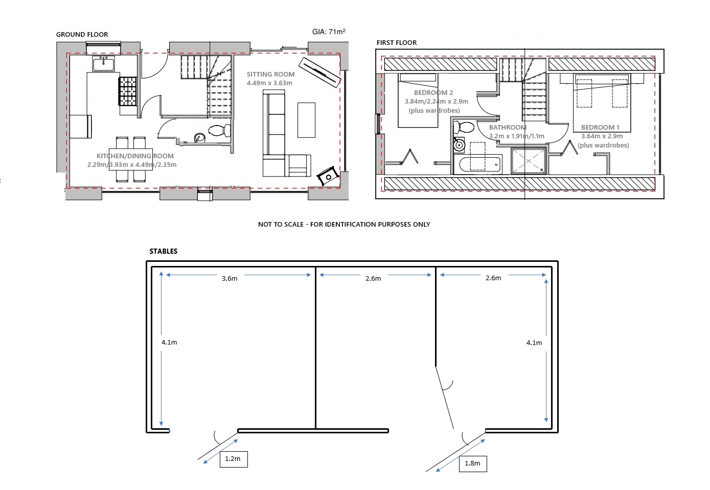
- Floorplan
- Floorplan
- Brochure
- EPC
Property Summary
- Ref: LAT221455
- Type: Barn Conversion, Smallholding
- Availability: Withdrawn
- Bedrooms: 2
- Bathrooms: 1
- Reception Rooms: 1
- Parking: Off Road Parking
- Outside Space: Garden, Land
- Council Tax Band: C
- Tenure: Freehold
- Acreage: 2.63 acres
Full Details
The Property
Homelands is an almost new (completed 2024) detached modern house built in the style of a barn conversion set in 2.63 acres or thereabouts.
The position is wonderful, being quiet but not isolated, and with open views across to Constantine Church and to Nare Point in the distance.
The dwelling is modest in size but is light and airy with well proportioned accommodation including; entrance hall with plant room, kitchen/dining room, w.c. and sitting room to the ground floor with two double bedrooms – both with built-in double wardrobes and shelved cupboards – and a bathroom (with shower cubicle) to the first floor.
Underfloor heating has been installed on the ground floor, with the upstairs heated by radiators.
Gardens & Grounds
Double gates from the roadway open into a gravelled driveway providing parking and turning space for several vehicles and beyond this are level lawned gardens including a productive vegetable garden. Alongside the gardens are three paddock enclosures, all with post and rail fencing, which are fairly equally sized and therefore ideal for grazing rotation.
Additionally, there is a juvenile fruit orchard planted with pear, apple, plum and cherry trees.
Within the grounds is a range of timber stabling set on a concrete base with front yard and comprising two stables and a large feed/tack room. Overall dimensions 8.8m x 4.1m.
Property Information
EPC B Council Tax Band C
Services
Mains water and electricity, private drainage (sewage treatment plant), Air Source Heat Pump for heating. None of these services have been tested and therefore no guarantees can be given. Interested parties are advised to make their own enquiries to the relevant service providers.
Wayleaves, Easements & Rights of Way
The sale will be subject to and with the benefit of all wayleaves, easements and rights of way as may exist.
Particulars & Plan
Whilst every care is taken in the preparation of these particulars, their accuracy is not guaranteed and they do not constitute any part of an offer or contract. Any intending purchaser/s must satisfy themselves by inspection or otherwise as to the correctness of these particulars.
Location
Homelands is located on the very edge of the hamlet of Brill, which is within approximately half a mile of Constantine. Constantine is a popular village offering every day amenities including Primary School, Parish Church, convenience store, doctor’s surgery, community centre, public house and even a wine shop. Further facilities are available in Falmouth, which is within 7 miles. The Helford River and the sailing waters of the Carrick Roads are both within close proximity for the water enthusiasts and there are several bridleways within riding distance for the equestrians.
Viewing & Directions
Strictly by appointment with the sole selling agent Lodge & Thomas. Tel: 01872 272722
email: property@lodgeandthomas.co.uk
Directions
From the centre of Constantine proceed in a northerly direction towards the primary school and immediately after the school, turn left signposted Gweek and Helston. Continue along this road for approximately half a mile before turning right at the junction next to the Cricket Club. After approximately 175m Homelands will be found on the right hand side identified by green double gates.
what3words///cards.adventure.circus
Map View
what3words Locations
cards.adventure.circus




























