Perranwell Station, Truro
4 bedroom character property, detached house - 19 acresFeatures
- Period detached non-listed unmodernized farmhouse
- Range of useful traditional and modern outbuildings
- Extending in all to just under 19 acres in total
- Enjoying a high degree of privacy
- Accessible to Perranwell Station, Truro and Falmouth
Property Summary
In an elevated private position enjoying far-reaching views, a period farmstead set in a private position, surrounded by its own land extending in all to approximately 19 acres, convenient for the village of Perranwell Station, the City of Truro and the Port of Falmouth.
Full Details
The Property
To be sold for the first time in four generations, a traditional farmstead positioned just north of the village of Perranwell Station, enjoying a southerly aspect and far-reaching views.
Accessed over an unmade lane leading to the farmyard, the property comprises a non listed, unmodernised, traditional farmhouse of granite and stone elevations with exposed granite lintels and quoins under a pitch slate roof.
Requiring a programme of refurbishment throughout, the property provides family accommodation to include an entrance hallway with stairs to the first floor; lounge with a cut slate stone fireplace, window seat to the front elevation; a dual aspect living room/dining area with window seat to front elevation, oil-fired Rayburn, and a tiled fireplace with recessed built-in cupboards and shelves to side, rear entrance lobby with understairs storage; kitchen with fitted units and stainless steel sink unit. To the first floor, split landing with doors off to four bedrooms; family bathroom; box room with airing cupboard.
The farmhouse has PVCu frame double glazed windows and partial electric night storage heating.
Formal gardens to the front of the house with mature herbaceous borders, level lawn with garden pond and vegetable garden to the side with a greenhouse.
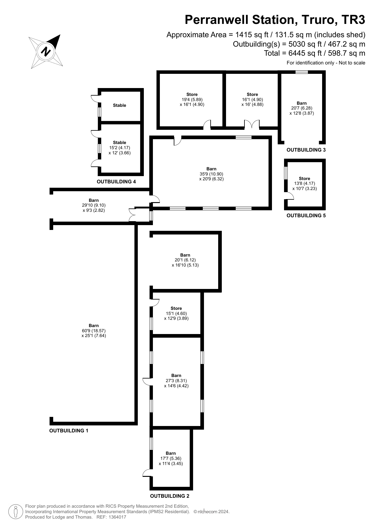
Outbuildings
A variety of useful outbuildings, offering potential for alternative uses, subject to planning. Accessed off a level yard area with offering ample parking, the outbuildings comprise:
Dutch Barn (18m x 8m) with concrete stanchions, corrugated asbestos fibre sheet roof, with the remains of a Machinery Shed to the front and a Store (17m x 3.5m) to the side.
A run of buildings, mainly concrete block and partially stoned walled comprising an open fronted Garage (6.3m x 3.8m) under a mono-pitch corrugated sheeted roof. former Pigs House (4.9m x 4.9m) under a corrugated sheeted roof and a Loose House (6m x 4.9m) under a corrugated sheeted roof.
Detached Former Cows House (11m x 6.5m) with stone elevations under a corrugated roof.
Stables (7.6m x 3.05m) of block elevations under a mono-pitch roof, divided into two boxes.
A range of traditional barns comprising a two storey Barn (5.32m x 3.43m) of stone elevations under a corrugated sheeted roof, attached Cows House (8.29m x 4.18m) of stone elevations under a corrugated sheet roof, attached former Pigs House (4.5m x 4m) and an attached Garage/Store (6m x 5m) with a further Store Shed (4m x 3.2m).
The Land
Enjoying a level or gently sloping topography and bounded by traditional Cornish hedge banks with mature trees providing much shelter and shade, the land is classified as Grade III on the Land Classification Map, and extends to 17.55 acres or thereabouts.
The land is divided into seven manageable enclosures and would be suitable for grazing, cropping or indeed horticultural purposes.
The land is currently laid to pasture and is divided evenly either side of the entrance lane, with some of the fields benefiting from water troughs.
Property Information
EPC F Council Tax Band E
Services - Mains water and electricity. Private drainage. None of these services have been tested and therefore no guarantees can be given. Interested parties are advised to make their own enquiries to the relevant service providers.
Wayleaves, Easements & Rights of Way - The sale will be subject to and with the benefit of all wayleaves, easements and rights of way as may exist. A neighbouring property, The Haven, has a right of way over part of the entrance lane. A bridleway passes over part of the entrance lane, away from the farmstead.
Particulars & Plan - Whilst every care is taken in the preparation of these particulars, their accuracy is not guaranteed and they do not constitute any part of an offer or contract. Any intending purchaser/s must satisfy themselves by inspection or otherwise as to the correctness of these particulars.
Location
Little Bargus Farm lies approximately 1 mile from the centre of the highly popular village of Perranwell Station, boasting a public house, village shop, primary school and a railway station on the Falmouth to Truro branch line. The County town of Truro is approximately 6 miles away, providing a wide variety of retail and professional services along with private education, health and leisure facilities.
For the outdoor enthusiasts, there are numerous footpaths, bridlepaths and quiet lanes for walking and riding, to include the nearby Bissoe Trail linking the south and north coasts.
For sailing enthusiasts, Mylor Harbour is approximately 6 miles distant and provides access to the sheltered sailing waters of the Carrick Roads.
Viewing & Directions
Strictly by appointment with the sole selling agent Lodge & Thomas. Tel: 01872 272722
email: property@lodgeandthomas.co.uk
Directions
Upon entering Perranwell Station from the direction of Carnon Downs, turn first right following the signpost for Grenna Lane, proceed over the bridge over the railway line and bear around to the left into Greenwith Road. Continue along Greenwith Road for approximately 1 mile bearing around the 90 degree right hand corner, and after a ¼ of a mile, or so, turn left onto the access drive to the farm.
what3words ///masters.calculate.fingernails














































