1 Trevissick Court, Porthtowan
2 bedroom terraced houseFeatures
- 2 bedroom, 1 reception room country cottage
- 1.5 miles from Porthtowan Beach, 9 miles from Truro
- Oil fired central heating, fully double glazed
- Fixed charge for water and drainage £25 PCM
- NO DOGS - other pets may be considered
- 2 dedicated parking spaces
- Landlords will undertake monthly window cleaning, and hedge cutting twice each year
Property Summary
Full Details
The Property
1 Trevissick Court, Porthtowan is an attractive, semi-detached, two bedroom country cottage situated in unspoiled countryside on the edge of a smallholding close to the popular North Cornwall beach resort of Porthtowan, and just 9 miles north-west of Truro. The tenancy includes a garden and private parking.
The property benefits from an oil fired central heating system with radiators throughout the property and double glazing.
Located away from the main road through the village, the property is located on the edge of a smallholding accessed via a tarmacadam private road of approximately 0.5 miles. The property benefits from views over surrounding pastoral countryside and wooded valleys.
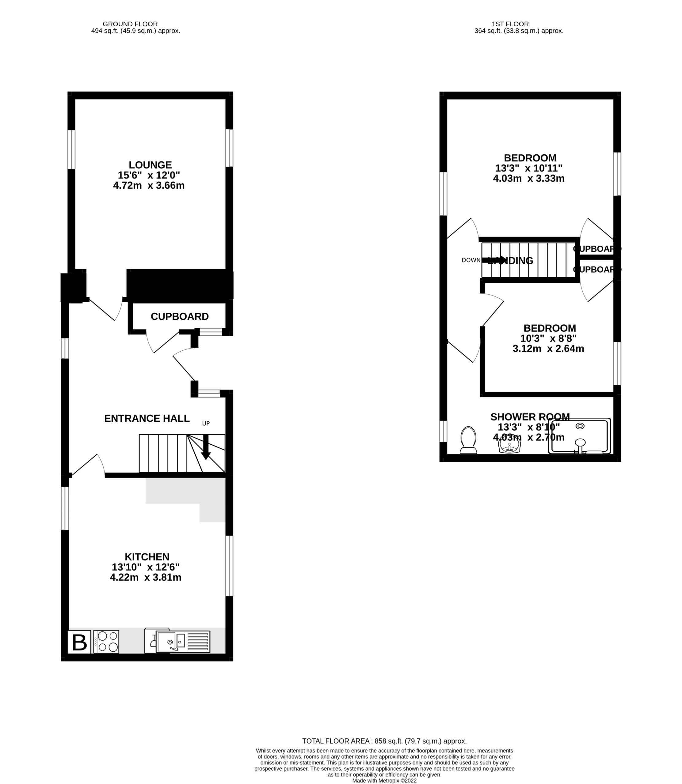
From the public highway, the private entrance road leads to Trevissick Farm and to 1 Trevissick Court, with a parking area providing two dedicated parking spaces adjacent to the entrance gate to the cottage. A path leads through the garden to the cottage, which includes the following accommodation (PLEASE REFER TO FLOOR PLAN FOR APPROXIMATE DIMENSIONS): -
GROUND FLOOR
Porch: with electric light, slate floor, electricity meter / consumer unit, uPVC double glazed door to entrance hallway.
Hallway (3.78m x 3.62m) tiled floor, 1 x wall mounted radiator, white painted open beam ceiling, wall mounted light fittings, stairs to first floor, 2 x double plug sockets & 1 x single plug socket, smoke alarm;
Cloakroom (2.72m x 2.07m) tiled floor, WC, Belfast sink, wall mounted radiator, 4 x coat hooks, brown uPVC obscure double glazed window to Porch, electricity fusebox;
Steps from Hallway to:
Sitting Room (4.01m x 3.96m) carpet floor, wall mounted radiator, electric fire, 4 x double plug sockets & TV aerial port, 1 x window to front elevation & 1 x window to rear elevation (both with curtain poles);
Kitchen (4.21m x 3.85m) tiled floor, base and wall fitted kitchen units, roll top work surfaces, composite splashbacks, Lamona composite double sink with drainer unit, electric oven with 4 ring hob and extractor fan over (N.B. a new oven will be fitted prior to the Tenancy commencing), 1 x vertical wall mounted radiator, open beam ceiling with 3 x triple spotlight fittings, new Beko dishwasher, washing machine slot & plumbing, Honeywell thermostatic heating control panel, 4 x double plug sockets & 2 x single plug sockets, 1 x window to front elevation & 1 x window to rear elevation (both with curtain poles);
FIRST FLOOR:-
Master Bedroom (3.97m x 3.29m) carpet floor, exposed timber beams, 1 x wall mounted radiator, built-in storage cupboard, 3 x double plug sockets & 1 x single plug socket, TV aerial port, 1 x window to front elevation & 1 x window to rear elevation (both with curtain poles);
Bedroom 2 (3.15m x 2.65m) carpet floor, 1 x wall mounted radiator, 2 x double plug sockets & 1 x single plug socket, TV aerial port, built-in storage cupboard with hanging rail, timber loft hatch, 1 x window to front elevation (with curtain pole);
Bathroom (7.48 m2) vinyl floor, part tiled and part painted walls, WC, pedestal hand wash basin, chrome heated towel rail, large glass shower cubicle with plastic shower tray and mains plumbed shower within, Manrose Gold extractor fan, 1 x obscure double glazed window to rear elevation (with curtain pole).
Outside
Parking spaces for 2 cars are included within the tenancy. Guest space/s available by arrangement.
The cottage has an enclosed garden to the front elevation with a concrete slab surfaced entrance path. The garden is stone chipping surfaced and bordered by a timber fence to the northern elevation and various hedging plants to the southern and eastern boundaries.
Agent Notes
ESTATE AGENTS ACT:
Lodge & Thomas confirm that this property belongs to one of our colleagues, and we are required to disclose this information.
UTILITIES / SERVICES:
Mains electricity and telephone connections. Private water and drainage systems. Oil fired central heating system with external boiler and oil tank.
Costs for all utilities are the responsibility of the Tenant.
The tenancy agreement will include a fixed charge of £25 PCM for water and drainage supplies. The Landlords will also provide window cleaning once each month and hedge trimming twice each year.
PETS:
STRICTLY NO DOGS. However, another pet may be allowed by negotiation, please provide details to the Agents for the Landlord's consideration.
SMOKING:
No Smoking.
COUNCIL TAX:
The property falls within Cornwall Council Tax Band “D” for the Parish of St Agnes.
The 2025/2026 charge is understood to be £2,497.97 PA (£208.16 PCM) for which the Tenant will be responsible.
EPC:
The EPC rating is C (80).
TENANCY:
Available to let unfurnished on an Assured Shorthold Tenancy for an initial term of 6 months. A longer term is envisaged and, provided the Landlord and Tenant are both happy to do so, the tenancy would then continue from month to month until terminated by either party.
APPLICATIONS:
(Lodge and Thomas do not charge application fees)
After you have viewed the property, please complete the Application and Referencing Form that will be e-mailed to you at your request. Please note that the referees you provide will be contacted by the Company that undertakes our referencing work.
INGOING PAYMENTS DUE FROM NEW TENANTS:
The successful Applicant will be required to sign an Assured Shorthold Tenancy Agreement. Prior to keys being handed over you will be required to make the following payments: -
RENT: (THE FIRST MONTH'S RENT DUE IN ADVANCE)
First month's rent due prior to commencement of the Tenancy. Rent is per calendar month and is due monthly in advance by Standing Order.
DEPOSIT: (RETURNABLE AT END OF TENANCY SUBJECT TO CONDITIONS)
A Tenant's Damage Deposit will be due prior to the commencement of the Tenancy. This will be held by the Landlord/Agent and registered with an approved Scheme. The Deposit will be returned to the Tenant at the end of the Tenancy, subject to conditions being fulfilled. The Tenant and Landlord will each be issued with a Deposit Protection Certificate and an Information Leaflet explaining the Deposit Scheme, as required by Law.
VIEWING:
Strictly and only by prior appointment with the Sole Letting Agents:
Lodge and Thomas, 58 Lemon Street, Truro, Cornwall, TR1 2PY
For further information please contact:
Lodge & Thomas on 01872 272722
































































